欢迎来到南京市卫生系统后勤管理协会网站!
会员之窗
会员风貌您的位置是:首页 > 会员之窗 > 会员风貌
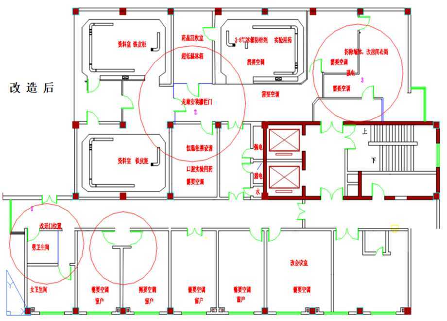
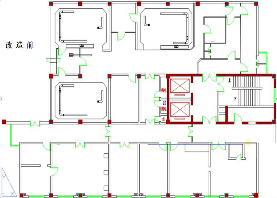
空间升级再发力:原手术室 “蝶变” 内分泌 GCP 实验基地

日期:2025-11-05  次浏览

近日,南京市第一医院南院住院楼二楼原手术室改造项目圆满完工,正式转型为内分泌代谢科GCP实验基地。此次改造以“需求导向、资源盘活、成本严控”为核心,既精准解决科室科研痛点,更通过存量空间再利用,为医院节约新建场地成本超20万元,实现科研服务与效益提升的双重突破。


改造前期,行政处与内分泌代谢科开展多轮深度对接,不仅明确药品回收、实验用药存储、资料管理等功能需求,更针对超低温冰箱、恒温柜等设备的高功率特性,逐一核算用电荷载,量身定制电路优化方案——新增专用配电箱并重新规划线路布局,确保每处电源接口精准匹配设备功率,彻底消除用电安全隐患,为实验设备稳定运行筑牢防线。





   在资源利用上,项目全程贯穿“节约优先”原则:拆除冗余墙体优化空间布局,搭配走廊不锈钢栅栏门划分功能区,让原手术室空间利用率提升40%;利旧安装5樘钢质门,减少资产闲置浪费;同步更新老旧吊顶为耐用铝扣板、更换LED平板灯、完善信息布线,既满足GCP实验规范,又避免重复采购。据测算,相比新建同等规模的GCP实验基地,此次改造通过盘活现有空间、利旧物资、精准配置设备,直接节约场地新建、基础装修及部分家具采购成本,累计减少医院投入超20万元。


此次改造既是行政处后勤团队盘活闲置资源、推动原手术室 “变废为宝” 的实践成果,更通过“精准服务+成本管控”的后勤服务模式,为医院科研场地升级提供了高效范本。未来,行政处将持续做好升级后实验基地的日常运维、物资保障与后勤安全管理,为内分泌代谢科高质量 GCP 研究筑牢服务后盾,助力医院在科研发展与成本效益间实现最优平衡,彰显行政处在后勤工作中对医院核心业务的支撑价值。




南京市第一医院供稿  通讯员-孙洪炎 马达  管理办公室整理


 

地址:南京市鼓楼区紫竹林3号 投稿邮箱:920680272@qq.com

Copyright@2018 南京市卫生系统后勤管理协会版权所有

主办单位:南京市卫生系统后勤管理协会 管理办公室 电话:025-58015360

备案号:苏ICP备19008383号-1

您是第 491929 位访问者